Algo muito importante para se construir, até mesmo os empreendimentos mais simples, como uma casa, são os projetos arquitetônicos.
No entanto, essa pode ser uma etapa complicada, então vamos tratar de uma planta de baixa simples.
O que é uma planta baixa simples?
Plantas baixas são desenhos técnicos que tem como função representar e alocar os elementos de um empreendimento, a partir de um corte imaginário feito à 1,5 m do piso.
De forma resumida, a planta baixa se assemelha ao desenho da vista superior da construção, se desconsiderarmos a cobertura.
As plantas baixas simples são, como o próprio nome indica, plantas baixas como as do projeto arquitetônico, no entanto, são feitas de uma forma mais simples.
O que pode facilitar o entendimento por pessoas mais leigas, além de serem de fácil acesso.
Sua função é definir onde ocorrerá a construção de cada elemento, além de orientar os profissionais que irão executar a construção em si, de modo que seja usada para solucionar dúvidas e como um guia propriamente dito.
Quando usar uma planta baixa simples?
Existem diversas oportunidades onde é possível usar uma planta baixa simples.
Podemos usar, por exemplo, como uma inspiração para ter como base no desenvolvimento da nossa própria planta.
Além de ser possível usar uma planta já predefinida, no entanto deve-se atentar para as características dos terreno, como:
- Posição geográfica;
- formato do terreno;
- características do solo;
- etc.
Pois, a planta utilizada deve se adequar de forma correta ao terreno.
Uma planta baixa simples é uma ótima opção para construções mais simples, sendo normalmente mais baratas, por não envolverem aplicações muito extravagantes, e consequentemente mais caras.
Principais benefícios da planta baixa simples
Quando necessária, a planta baixa irá auxiliar em diversos aspectos a construção em si.
Antes de se iniciar a obra propriamente dita, durante o planejamento, é possível fazer mudanças rapidamente e já se ter um layout de como ficará.
Durante o processo de construção, ter uma planta baixa irá permitir uma melhor comunicação entre os idealizadores e os profissionais responsáveis pela construção em si.
Pois, nela irão estar representados os elementos essenciais da edificação, assim como sua disposição e medidas.
Como fazer uma planta baixa simples para sua obra?
Sendo um desenho técnico para a orientação na construção, ao desenhar planta baixa deve ser feita seguindo alguns passos e orientações.
Dentre as orientações que deve seguir, é importante que se atenda às normas da ABNT (Associação Brasileira de Normas Técnicas).
O trabalho para se fazer uma planta baixa se dá com o uso de escalas, onde as medidas feitas no desenho da planta baixa irão representar as medidas reais das peças e terreno.
Esta escala usada nos desenhos é chamada de escala de redução, enquanto é chamada de escala real as medidas dos elementos no mundo real.
Podemos então iniciar a elaboração da planta baixa em si, primeiramente deve ser feito um esboço, onde deve-se representar a disposição dos cômodos e do fluxo de passagem almejado.
Adicionando também a disposição de aberturas e elementos da área externa, como o jardim, pátio e piscina.
Posteriormente é necessário que o desenho seja locado no lote de terreno em que o imóvel será construído, então devemos definir os limites do terreno.
Só então poderemos iniciar o processo de desenho da planta baixa em si.
Para isso, vamos iniciar pelos elementos que irão limitar a edificação, desenhando então, as paredes, aberturas e os próprios cômodos em si.
Definindo também, as espessuras das paredes e localização das portas e janelas.
Após as paredes, é importante incluir os elementos do sistema hidráulico, as louças e bancadas, pois irá auxiliar na orientação para a instalação hidrossanitária, onde se terá uma melhor ideia de pôr onde as tubulações devem seguir.
Também é interessante a inserção de outros móveis, para que se tenha uma ideia melhor da área dos cômodos.

Agora também inserimos informações que irão auxiliar na construção, como cotas, níveis, delimitação da cobertura, nomes e áreas dos cômodos, e cortes.
Pois, a partir destes os responsáveis pela obra terão informações importantíssimas.
As cotas são números que indicam as medidas das peças, geralmente expressas em metros.
Já os níveis irão evidenciar o nível daquele cômodo em relação ao terreno,.
Isto é, a altura daquele cômodo, sendo importante que áreas molhadas tenham níveis mais baixos que áreas secas para auxiliar no escoamento da água.

Exemplos de plantas baixas simples
Agora que sabemos tudo sobre plantas baixas simples, como são e quais suas funções, vamos analisar alguns modelos de plantas para facilitar a compreensão geral e servir de inspiração.
Modelo 1

Existindo modelos mais simples, onde são representadas apenas as partes mais estruturais do projeto, onde é possível conferir as medidas do local e de cada um dos cômodos.
Esta é uma planta que toma por base a área do terreno em que pode construir e a partir dela dividir os cômodos para que se adéquem ao terreno.
Modelo 2

Esse exemplo tem um layout básico, mas ainda assim mais completo que o anterior, tendo uma sala de estar e sala de jantar, cozinha com área de serviço, banheiro social e três quartos, sendo um suíte.
Este layout é bastante comum em residências populares, pois é completo e ainda há uma certa liberdade e espaço.
Modelo 3

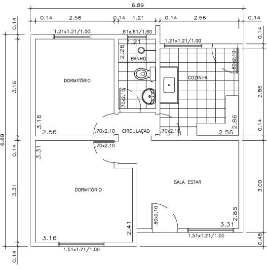
Neste exemplo vemos um layout ainda mais simples, onde há uma sala de estar, uma sala de jantar e cozinha em um espaço mais compacto, área de serviço, um banheiro social e dois quartos.
Este é um modelo bem básico e popular de residência.
Modelo 4

Mais um exemplo mais compacto e popular, podemos observar que é composto por sala de estar e jantar, cozinha com área de serviço, um banheiro e dois quartos.
Apresentando os mesmos elementos que compõem o exemplo anterior, no entanto, em um layout diferente.
Essa diferença pode ajudar a escolher uma planta dada a configuração do terreno em que será construída.
Modelo 5

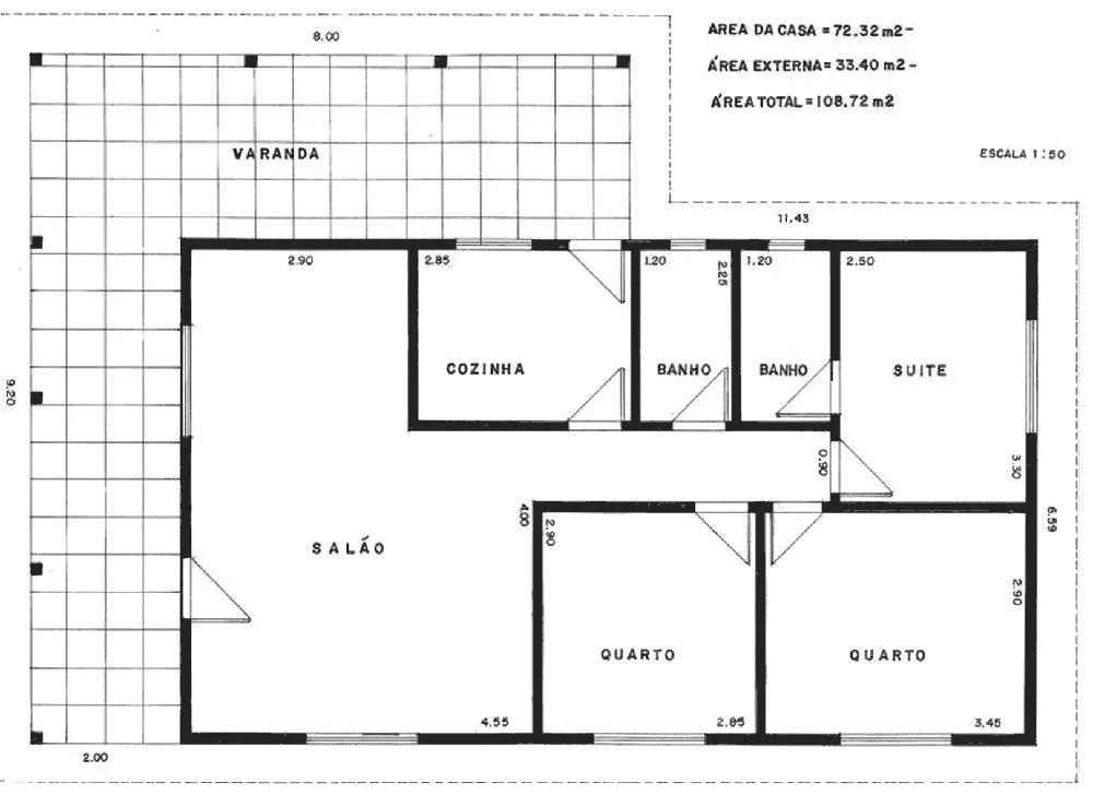
Este exemplo temos agora uma planta mais ampla, dando uma maior noção de espaço e liberdade, mesmo com uma configuração simples.
Sendo composto por uma sala de estar e jantar, cozinha, área de serviço, três quartos e um banheiro social, todos os cômodos sendo amplos e confortáveis.
Sendo este um modelo um pouco mais elaborado de uma planta baixa simples.
Conclusão
Vimos que as plantas baixas são ótimas opções para construções simples, justamente por não exigirem muita complexidade.
Além disso, vimos que elas ajudam bastante ao dar uma visão geral de como será a construção antes mesmo de estar pronta, te auxiliando na melhor modelação da sua casa.
Então, caso esteja com dificuldades em entender como cada cômodo será, ela se torna uma excelente opção.
Comments (0)